︎
atelier moderno
info
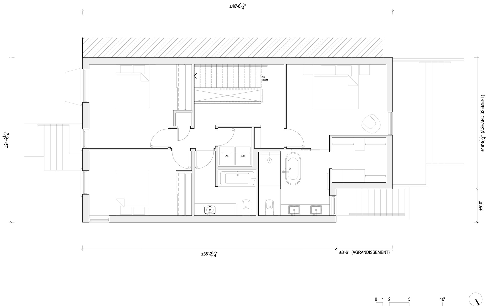
Augier
-
Agrandissement résidentiel
Montréal, 2019