︎
atelier moderno
info
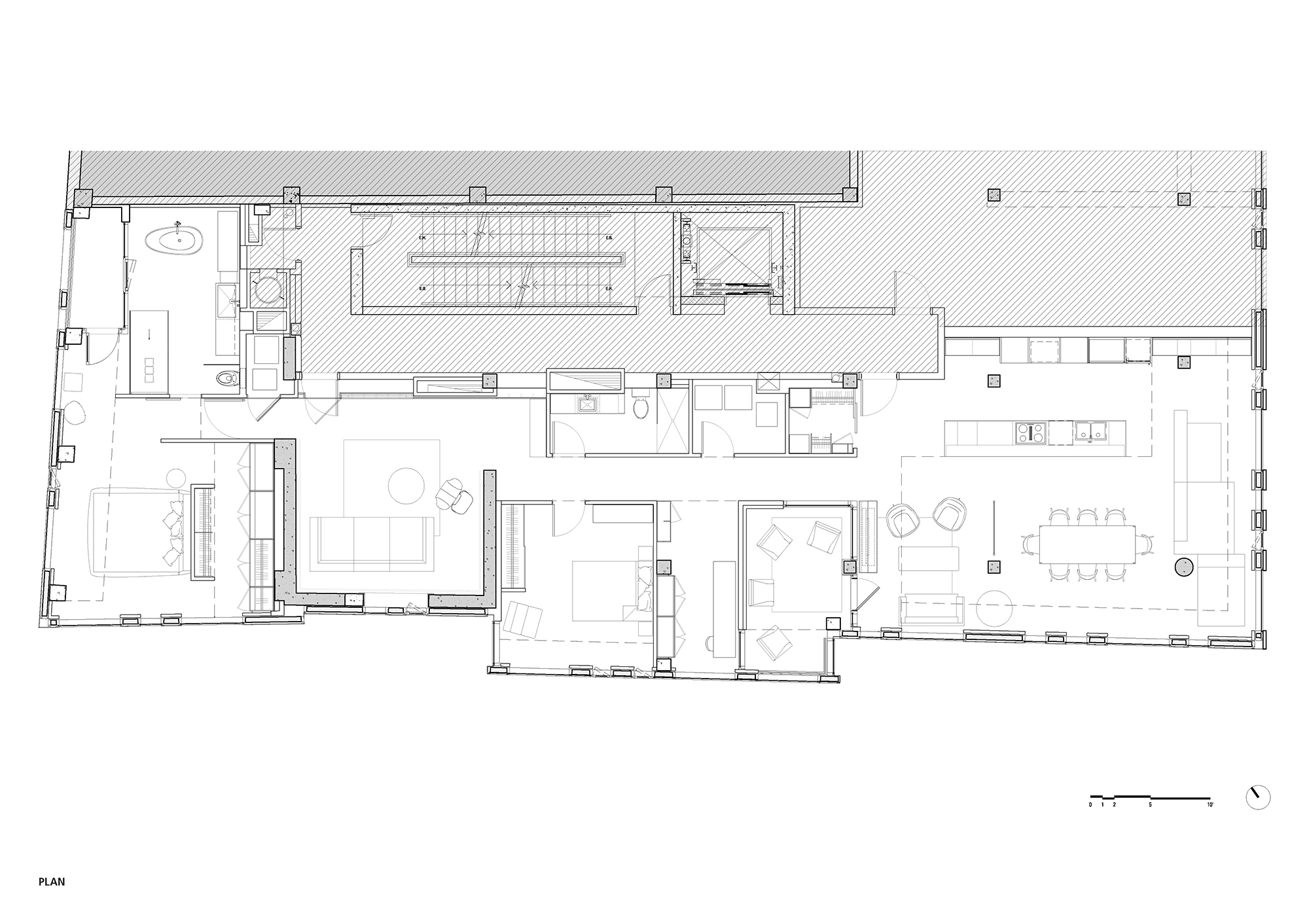
Bank
-
Réaménagement résidentiel
Montréal, 2015
2016, «Lauréat»,
Grands Prix du Design (salle de bains
)