︎
atelier moderno
info
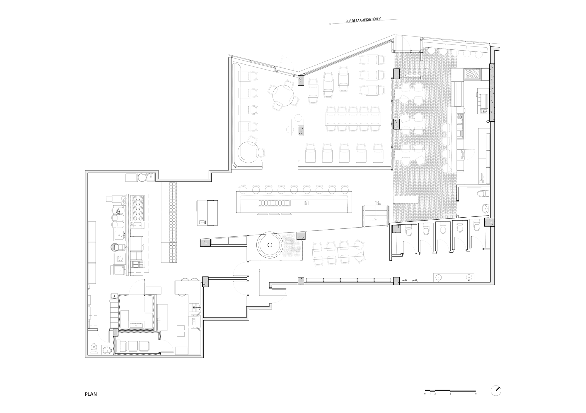
Fiorellino
-
Concept restaurant
Montréal, 2016
2017, «Lauréat»,
Grands Prix du Design (prix restaurant de plus de 2 000 p2)