︎
atelier moderno
info
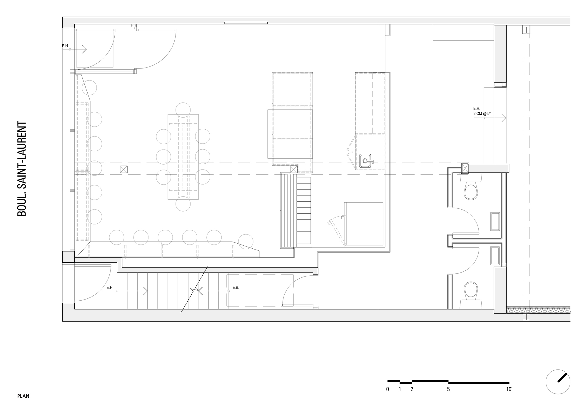
Porchetta
-
Concept restaurant
Montréal, 2015